Listing Tools

Listed by Kacy Jackson of Coldwell Banker Island Properties - Hilo (8085573654)

Listing Sold by eXp Realty
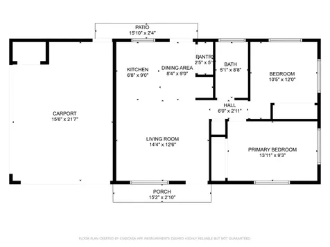
Now available in the growing Ainaloa subdivision-a brand-new 2-bedroom, 1-bath home complete with a carport and concrete driveway!

This charming single-level home offers 1,056 sq ft under roof on a 12,000 sq ft lot. The open-concept kitchen features new soft-close cabinets, stainless steel appliances, and modern finishes. Interior highlights include durable LifeProof vinyl flooring, ceiling fans in both bedrooms room elegantly placed on the tray ceilings, built-in closet shelving and window blinds that offer both privacy and light control.

The modern bathroom shower features beautiful floor-to-ceiling tiled walls with a built-in niche and stylish finishes. The outdoor carport includes epoxy coating, a utility sink and a storage closet housing the water pump and filtration system.

Additional features include:
Concrete driveway
On-demand tankless gas water heater
10,000-gallon catchment tank with UV light water filtration
High-speed internet availability
Convenient location on a paved road
Landscaped with beautiful Eureka Palms along one side of the property
Fenced frontage with a gated entryway for enhanced curb appeal and security

Located between Pahoa and Keaau town, Ainaloa offers the convenience of proximity to shopping areas, restaurants, medical facilities, the Makuu farmers market, and more. Moreover, the Ainaloa subdivision boasts amenities such as a park, mailboxes, and an active community center. Visit https://ainaloa.org/ for further details on the Ainaloa Community Association and don't miss the chance to own in this vibrant community!

Property Details of 16-2168 Tree Fern Drive

Property Details

Interior Features

Exterior Features

Utilities and Appliances

Community

Map Location

 "Based on information submitted to Hawaii Information Service as of November 14, 2025 8:12 AM EST. All data is deemed reliable but is not guaranteed accurate by the MLS. All information should be independently reviewed and verified for accuracy. IDX information is provided exclusively for consumers’ personal, noncommercial use and may not be used for any purpose other than to identify prospective properties consumers may be interested in purchasing."

Hi there! How can we help you?

Contact us using the form below or give us a call.

Send Us A Message:

I agree to receive marketing and customer service calls and text messages from Todd Barrett, Broker/Owner. To opt out, you can reply 'stop' at any time or click the unsubscribe link in the emails. Consent is not a condition of purchase. Msg/data rates may apply. Msg frequency varies. Privacy Policy.

Do not fill in this field:

This site is protected by reCAPTCHA and the Google Privacy Policy and Terms of Service apply.

Hi there! How can we help you?

Contact us using the form below or give us a call.

Send Us A Message:

Do not fill in this field:

This site is protected by reCAPTCHA and the Google Privacy Policy and Terms of Service apply.

Hi there! How can we help you?

Contact us using the form below or give us a call.

Send Us A Message:

Do not fill in this field:

This site is protected by reCAPTCHA and the Google Privacy Policy and Terms of Service apply.

Do not fill in this field:

This site is protected by reCAPTCHA and the Google Privacy Policy and Terms of Service apply.

Do not fill in this field:

This site is protected by reCAPTCHA and the Google Privacy Policy and Terms of Service apply.

Do not fill in this field:

This site is protected by reCAPTCHA and the Google Privacy Policy and Terms of Service apply.

$

Do not fill in this field:

This site is protected by reCAPTCHA and the Google Privacy Policy and Terms of Service apply.